Деревянный загородный дом: постройка с нуля

Моя работа как архитектора-дизайнера над этим объектом длилась несколько лет: проектирование дома началось в августе 2015 г., начало строительства – май 2016 г., завершение строительства и отделочных работ в доме – сентябрь 2018 г., комплектация интерьера (мебель, текстиль, декор) была завершена в декабре 2019 г., а фотосъемку провели в мае 2020 года.

Заказчики проекта

Пара с двумя взрослыми детьми

Площадь объекта

290 кв.м.

Срок выполнения

2015-2020

Дом выполнен в скандинавском стиле. Европейский образ дома определяет выбранная цветовая гамма отделочных материалов. Снаружи стены тонированы в светло-серый жемчужный оттенок. Для цоколя здания, подпорных стен и террасы использовали натуральный серый камень с рельефной текстурой.

В качестве материала для кровли выбрали натуральную крупноформатную черепицу с «голландским» S-образным профилем. Такой прием напоминает изящную архитектуру античности, воплощенную в современной элегантной форме кровли цвета графит.

Дом получился легким, светлым и достаточно просторным. Архитектура дома выразительна и логична, а внутренние объемы достаточны для того, чтобы разместить все необходимые помещения.
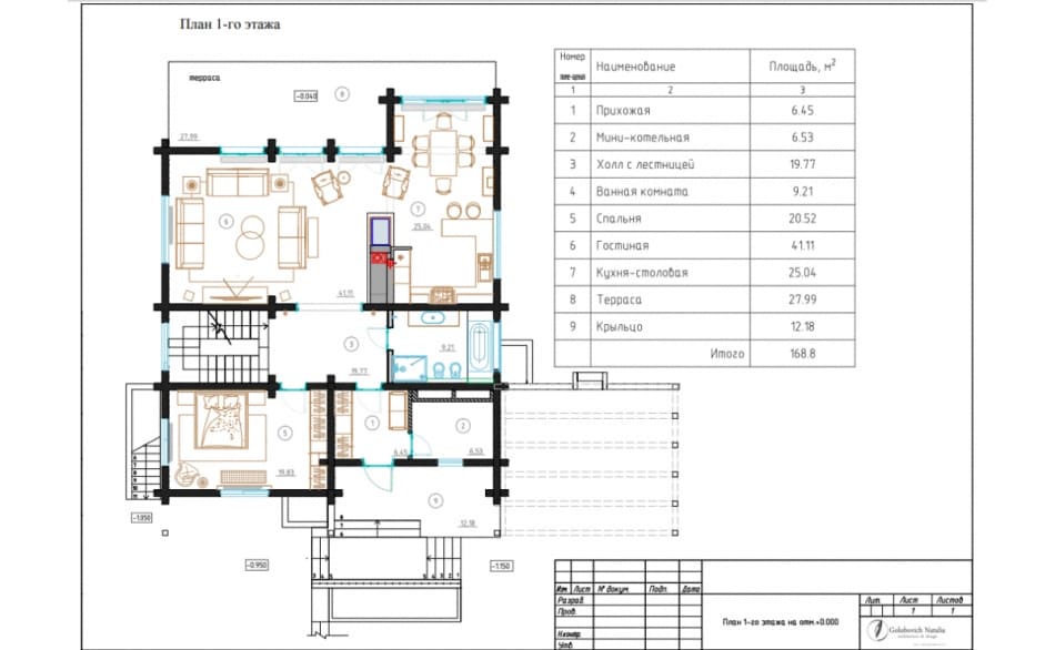
На первом этаже расположены прихожая, лестничный холл, хозяйская спальня, ванная комната, гостиная со вторым светом, столовая и кухня.
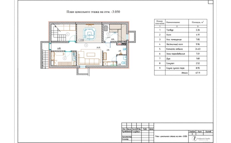
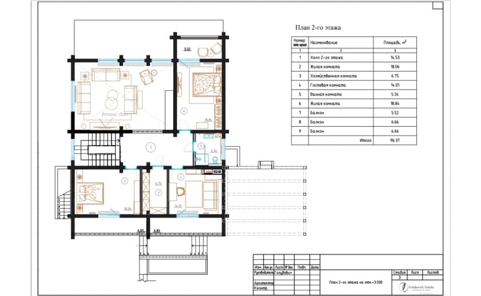
Второй этаж отдали уже взрослым детям и гостям. В доме спроектирован и цокольный этаж. Там расположили зону отдыха с сауной. На этом этаже также предусмотрена хозяйственная комната/постирочная, душевая, санузел и зона для отдыха с сауной.
Продуманная планировка и множество окон делают дом нарядным, а тонкий рисунок оконных переплетов и белые наличники подчеркивают его изящество.

На улице спроектировали беседку с зоной барбекю, которую с домом соединяет общий настил из лиственницы. Безрамное остекление, предусмотренное в беседке, позволяют легко сделать пространство полностью открытым или, наоборот, закрыться в ветреную погоду, разжечь огонь и посидеть за семейными разговорами.

Дом выполнен в скандинавском стиле. Европейский образ дома определяет выбранная цветовая гамма отделочных материалов. Снаружи стены тонированы в светло-серый жемчужный оттенок. Для цоколя здания, подпорных стен и террасы использовали натуральный серый камень с рельефной текстурой.<br><br>

В качестве материала для кровли выбрали натуральную крупноформатную черепицу с «голландским» S-образным профилем. Такой прием напоминает изящную архитектуру античности, воплощенную в современной элегантной форме кровли цвета графит. <br><br>

Дом получился легким, светлым и достаточно просторным. Архитектура дома выразительна и логична, а внутренние объемы достаточны для того, чтобы разместить все необходимые помещения. <br>
На первом этаже расположены прихожая, лестничный холл, хозяйская спальня, ванная комната, гостиная со вторым светом, столовая и кухня. <br> 
Второй этаж отдали уже взрослым детям и гостям. В доме спроектирован и цокольный этаж. Там расположили зону отдыха с сауной. На этом этаже также предусмотрена хозяйственная комната/постирочная, душевая, санузел и зона для отдыха с сауной. <br>
Продуманная планировка и множество окон делают дом нарядным, а тонкий рисунок оконных переплетов и белые наличники подчеркивают его изящество. <br><br>

На улице спроектировали беседку с зоной барбекю, которую с домом соединяет общий настил из лиственницы. Безрамное остекление, предусмотренное в беседке, позволяют легко сделать пространство полностью открытым или, наоборот, закрыться в ветреную погоду, разжечь огонь и посидеть за семейными разговорами.

Больше фото проекта

Деревянный загородный дом: постройка с нуля
Деревянный загородный дом: постройка с нуля
Деревянный загородный дом: постройка с нуля
Деревянный загородный дом: постройка с нуля
Деревянный загородный дом: постройка с нуля
Деревянный загородный дом: постройка с нуля
Деревянный загородный дом: постройка с нуля
Деревянный загородный дом: постройка с нуля
Деревянный загородный дом: постройка с нуля
Деревянный загородный дом: постройка с нуля
Деревянный загородный дом: постройка с нуля
Деревянный загородный дом: постройка с нуля
Деревянный загородный дом: постройка с нуля
Деревянный загородный дом: постройка с нуля
Деревянный загородный дом: постройка с нуля
Деревянный загородный дом: постройка с нуля
Деревянный загородный дом: постройка с нуля
Деревянный загородный дом: постройка с нуля
Деревянный загородный дом: постройка с нуля
Деревянный загородный дом: постройка с нуля

Не откладывайте свою мечту на завтра!
Получите детальный проект квартиры или дома мечты!

Оставьте свои контактные данные, чтобы мы могли с вами связаться и обсудить ваш проект.

Часто задаваемые вопросы

Конечно! На стадии разработки проекта можно вносить изменения. Если возникло желание внести изменения в готовый проект после согласования и сдачи, тогда составляется доп.соглашение о дополнительной оплате и о характере корректировок.

Дизайн проект включает в себя:
План обмера помещения (существующая планировка помещения с указанием площади).
Утвержденный концепт-план (планировочное решение с разделением на функциональные зоны с расстановкой мебели и сантехнического оборудования).
Подбор материалов (отделочные материалы, мебель, сантехника, светильники, текстиль и многое другое).
Ведомость отделочных материалов (площади материалов, типы материалов).
План демонтажа конструкций.
План монтажа конструкций из ГКЛ (с дополнительными схемами конструкций на новых листах).
План-схема дверных проемов (со спецификацией дверей и витражей).
План отопительных приборов.
План сантехнического оборудования (подбор сантехники и развертка по стенам с привязками).
План покрытий пола с указанием площади.
План уровней потолка.
План освещения (спецификация светильников).
План розеток с привязками.
Узлы сложных и дизайнерских конструктивных решений.
Развертки по стенам. Раскладка плитки.
Подробные чертежи сложных узлов и деталей.
Чертежи по кухне и оборудованию.
Чертежи индивидуальных изделий под заказ.
Визуализации интерьера.

Цена на дизайн-проект всегда зависит от его наполнения, т.е. от поставленных задач, их сложности, сроков, этапов реализации и площади помещения.
Работа может включать создание только эскизного проекта, рабочего проекта или полного проекта. Наличие услуги авторского сопровождения дизайнера также влияет на итоговую стоимость проекта.

Чертежи нужны, прежде всего, строителям. Чертежная документация пошагово отражает, как нужно проводить ремонтные работы на конкретном объекте. Чтобы не было дорогостоящих и долгих переделок, исполнителям надо дать четкую «инструкцию ремонта».
Чертежи – это помощники в коммуникации между дизайнером и строительной бригадой. С помощью комплекта чертежей строители и отделочники выполнят все работы именно так, как было спроектировано.

Стоимость дизайн-проект всегда зависит от его наполнения (площади помещения, поставленных задач, их сложности, этапов и сроков реализации).
Дизайн-проект может быть только эскизный или дополнен 3D-моделированием. Комплект чертежей может быть базовым или полным. На итоговую стоимость влияет наличие дополнительных услуг: авторского сопровождения, комплекция, декорирования объектаи др.

Удобство и функционал – одно из основных требований, которое я ставлю перед собой как дизайнером. Поэтому я всегда определяю все действия, которые будут происходить в помещении, не забывая про ежедневные рутины. Это та самая база, без которой дизайн может оказаться неудачным. Только так можно сделать помещение многофункциональным и удобным.
Четкий алгоритм работы всегда позволяет мне найти именно то планировочное решение, которое будет функциональным и эргономичным, удобным и лаконичным.

Да. Если у вас возникло желание внести изменения в готовый проект после его согласования и сдачи, тогда составляется доп.соглашение о дополнительной оплате.
Вы также можете решить расширить пакет чертежной документации, выбрать услугу авторского надзора или заказать разработку ландшафтного оформления. Это также повлияет на итоговую оплату работы дизайнера.

При проведении ремонтных работ нужно заключать договор, чтобы в случае ненадлежащего исполнения и порчи материалов нарушитель нес ответственность, а у пострадавшей стороны была возможность предъявить требования. Я считаю, что строители должны с вами согласовать, как будет возмещен ущерб. Иногда они сами покупают тот материал, который испортили.
Чтобы такого не произошло, выбирайте проверенных строителей или по рекомендации.

Остались вопросы?

Оставьте заявку и наш менеджер ответит вам в ближайшее время

Вверх