Дизайн интерьера деревянного загородного дома

Заказывая дизайн интерьера, клиент подчеркнул, что семья часто собирается в столовой: хозяева очень любят готовить и устраивать званые обеды и ужины. Детально проработав планировку на этапе проекта, удалось учесть все пожелания.

Заказчики проекта

Пара

Стиль

скандинавский

Площадь объекта

330 кв.м.

Срок выполнения

5 лет

Открытое пространство первого этажа с большими окнами (гостиную и кухню/столовую) разделяет высокий трёхсторонний камин. Он построен по эскизу дизайнера. Нижняя часть облицована мрамором. Завершающим акцентным штрихом стала картина «Маяк» над камином; у членов семьи она вызывает особые чувства и воспоминания.

Высокое качество клеёного бруса и его эстетика дают возможность отказаться от использования в интерьере отделочных материалов. Почти все стены в этом доме выкрашены полупрозрачной белой краской, которая не скрывает фактуру дерева, а в некоторых помещения использовалась глухая покраска (ванные комнаты, спальня сына).

В проекте изначально была идея сделать второй свет в гостиной. Ее и воплотила. Конечно, второй свет – это очень красиво, но не так просто в оформлении, как кажется. Во-первых, нужно продумать конфигурацию окон, чтобы они отлично смотрелись не только изнутри, но и со стороны фасада. Во-вторых, при наличии второго света приходится уделять особое внимание текстильному оформлению окон. Большой объем остекления не должен создавать гнетущее впечатление, но и не должен быть полностью спрятан за многослойным текстилем.

В этом интерьере мы не боялись применять цвет, заказчик не хотел монохромного интерьера. Вся цветовая гамма построена на сочетании разных оттеков серого, синего и немного зеленого, а основным цветом выступает натуральный цвет дерева.

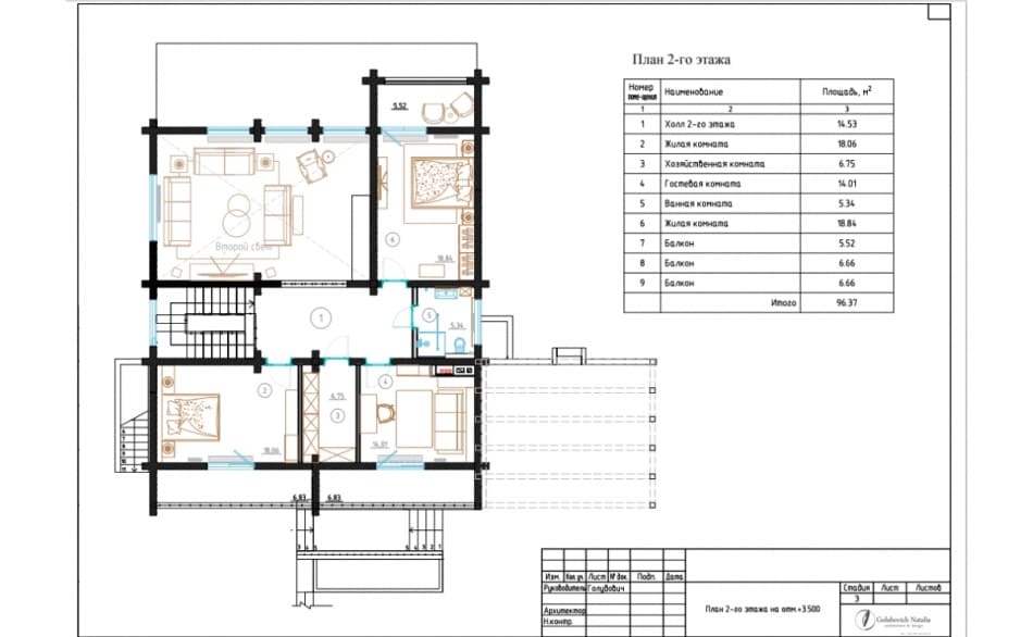
Второй этаж отдали уже взрослым детям и гостям. Цветовое решение комнаты дочери можно описать как сочетание коричнево-желтого, песочного и цвета сухого мха. У сына комнаты мужская, отличается строгостью. Часть стен выкрасили в темно-синий цвет, а остальные стены оставили цвета натурального дерева.

В каждой комнате на втором этаже есть балкон. И это здорово: сделали их комфортными и уютными, чтобы с удовольствием посидеть в кресле и почитать любимую книгу.

Открытое пространство первого этажа с большими окнами (гостиную и кухню/столовую) разделяет высокий трёхсторонний камин. Он построен по эскизу дизайнера. Нижняя часть облицована мрамором. Завершающим акцентным штрихом стала картина «Маяк» над камином; у членов семьи она вызывает особые чувства и воспоминания.<br><br>

Высокое качество клеёного бруса и его эстетика дают возможность
отказаться от использования в интерьере отделочных материалов. Почти все стены в этом доме выкрашены полупрозрачной белой краской, которая не скрывает фактуру дерева, а в некоторых помещения использовалась глухая покраска (ванные комнаты, спальня сына).<br><br>

В проекте изначально была идея сделать второй свет в гостиной. Ее и
воплотила. Конечно, второй свет – это очень красиво, но не так просто в оформлении, как кажется. Во-первых, нужно продумать конфигурацию окон, чтобы они отлично смотрелись не только изнутри, но и со стороны фасада. Во-вторых, при наличии второго света приходится уделять особое внимание текстильному оформлению окон. Большой объем остекления не должен создавать гнетущее впечатление, но и не должен быть полностью спрятан за многослойным текстилем.<br><br>

В этом интерьере мы не боялись применять цвет, заказчик не хотел
монохромного интерьера. Вся цветовая гамма построена на сочетании разных оттеков серого, синего и немного зеленого, а основным цветом выступает натуральный цвет дерева.<br><br>

Второй этаж отдали уже взрослым детям и гостям. Цветовое решение
комнаты дочери можно описать как сочетание коричнево-желтого, песочного и цвета сухого мха. У сына комнаты мужская, отличается строгостью. Часть стен выкрасили в темно-синий цвет, а остальные стены оставили цвета натурального дерева.<br><br>

В каждой комнате на втором этаже есть балкон. И это здорово: сделали
их комфортными и уютными, чтобы с удовольствием посидеть в кресле и почитать любимую книгу.

Больше фото проекта

Дизайн интерьера деревянного загородного дома
Дизайн интерьера деревянного загородного дома
Дизайн интерьера деревянного загородного дома
Дизайн интерьера деревянного загородного дома
Дизайн интерьера деревянного загородного дома
Дизайн интерьера деревянного загородного дома
Дизайн интерьера деревянного загородного дома
Дизайн интерьера деревянного загородного дома
Дизайн интерьера деревянного загородного дома
Дизайн интерьера деревянного загородного дома
Дизайн интерьера деревянного загородного дома
Дизайн интерьера деревянного загородного дома
Дизайн интерьера деревянного загородного дома
Дизайн интерьера деревянного загородного дома
Дизайн интерьера деревянного загородного дома
Дизайн интерьера деревянного загородного дома
Дизайн интерьера деревянного загородного дома
Дизайн интерьера деревянного загородного дома
Дизайн интерьера деревянного загородного дома
Дизайн интерьера деревянного загородного дома
Дизайн интерьера деревянного загородного дома
Дизайн интерьера деревянного загородного дома
Дизайн интерьера деревянного загородного дома
Дизайн интерьера деревянного загородного дома
Дизайн интерьера деревянного загородного дома
Дизайн интерьера деревянного загородного дома
Дизайн интерьера деревянного загородного дома
Дизайн интерьера деревянного загородного дома
Дизайн интерьера деревянного загородного дома
Дизайн интерьера деревянного загородного дома
Дизайн интерьера деревянного загородного дома
Дизайн интерьера деревянного загородного дома
Дизайн интерьера деревянного загородного дома
Дизайн интерьера деревянного загородного дома
Дизайн интерьера деревянного загородного дома
Дизайн интерьера деревянного загородного дома
Дизайн интерьера деревянного загородного дома
Дизайн интерьера деревянного загородного дома

Не откладывайте свою мечту на завтра!
Получите детальный проект квартиры или дома мечты!

Оставьте свои контактные данные, чтобы мы могли с вами связаться и обсудить ваш проект.

Часто задаваемые вопросы

Конечно! На стадии разработки проекта можно вносить изменения. Если возникло желание внести изменения в готовый проект после согласования и сдачи, тогда составляется доп.соглашение о дополнительной оплате и о характере корректировок.

Дизайн проект включает в себя:
План обмера помещения (существующая планировка помещения с указанием площади).
Утвержденный концепт-план (планировочное решение с разделением на функциональные зоны с расстановкой мебели и сантехнического оборудования).
Подбор материалов (отделочные материалы, мебель, сантехника, светильники, текстиль и многое другое).
Ведомость отделочных материалов (площади материалов, типы материалов).
План демонтажа конструкций.
План монтажа конструкций из ГКЛ (с дополнительными схемами конструкций на новых листах).
План-схема дверных проемов (со спецификацией дверей и витражей).
План отопительных приборов.
План сантехнического оборудования (подбор сантехники и развертка по стенам с привязками).
План покрытий пола с указанием площади.
План уровней потолка.
План освещения (спецификация светильников).
План розеток с привязками.
Узлы сложных и дизайнерских конструктивных решений.
Развертки по стенам. Раскладка плитки.
Подробные чертежи сложных узлов и деталей.
Чертежи по кухне и оборудованию.
Чертежи индивидуальных изделий под заказ.
Визуализации интерьера.

Цена на дизайн-проект всегда зависит от его наполнения, т.е. от поставленных задач, их сложности, сроков, этапов реализации и площади помещения.
Работа может включать создание только эскизного проекта, рабочего проекта или полного проекта. Наличие услуги авторского сопровождения дизайнера также влияет на итоговую стоимость проекта.

Чертежи нужны, прежде всего, строителям. Чертежная документация пошагово отражает, как нужно проводить ремонтные работы на конкретном объекте. Чтобы не было дорогостоящих и долгих переделок, исполнителям надо дать четкую «инструкцию ремонта».
Чертежи – это помощники в коммуникации между дизайнером и строительной бригадой. С помощью комплекта чертежей строители и отделочники выполнят все работы именно так, как было спроектировано.

Стоимость дизайн-проект всегда зависит от его наполнения (площади помещения, поставленных задач, их сложности, этапов и сроков реализации).
Дизайн-проект может быть только эскизный или дополнен 3D-моделированием. Комплект чертежей может быть базовым или полным. На итоговую стоимость влияет наличие дополнительных услуг: авторского сопровождения, комплекция, декорирования объектаи др.

Удобство и функционал – одно из основных требований, которое я ставлю перед собой как дизайнером. Поэтому я всегда определяю все действия, которые будут происходить в помещении, не забывая про ежедневные рутины. Это та самая база, без которой дизайн может оказаться неудачным. Только так можно сделать помещение многофункциональным и удобным.
Четкий алгоритм работы всегда позволяет мне найти именно то планировочное решение, которое будет функциональным и эргономичным, удобным и лаконичным.

Да. Если у вас возникло желание внести изменения в готовый проект после его согласования и сдачи, тогда составляется доп.соглашение о дополнительной оплате.
Вы также можете решить расширить пакет чертежной документации, выбрать услугу авторского надзора или заказать разработку ландшафтного оформления. Это также повлияет на итоговую оплату работы дизайнера.

При проведении ремонтных работ нужно заключать договор, чтобы в случае ненадлежащего исполнения и порчи материалов нарушитель нес ответственность, а у пострадавшей стороны была возможность предъявить требования. Я считаю, что строители должны с вами согласовать, как будет возмещен ущерб. Иногда они сами покупают тот материал, который испортили.
Чтобы такого не произошло, выбирайте проверенных строителей или по рекомендации.

Остались вопросы?

Оставьте заявку и наш менеджер ответит вам в ближайшее время

Вверх