Дизайн-проект светлой двухкомнатной квартира для молодой пары

При знакомстве заказчики отметили, что отдают предпочтение дизайнам интерьеров, выполненным в ультрасовременном стиле с обилием пространства; в цветовой гамме предпочитают приглушенные оттенки.

Заказчики проекта

Молодая пара

Стиль

Минимализм

Площадь объекта

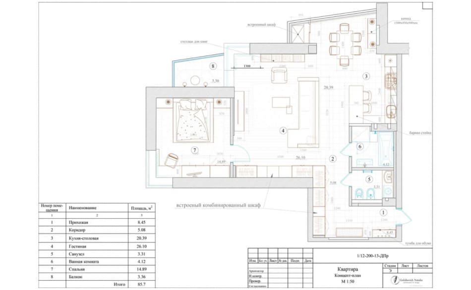
85,7 кв.м.

Срок выполнения

2020-2023

Дизайн-проект интерьера был разработан в стиле минимализм, так как данный стиль можно охарактеризовать как моделирование пространства и света с использованием только необходимых предметов. В стиле минимализм все поверхности просты и лаконичны, без какого-либо декора, украшений и отделки.
В проекте использовали нейтральную цветовую палитру – теплые серые стены, деревянный пол из дуба, графитовый серый и белый лак.

Чтобы создавалось ощущение простора, помещение по возможности освободили от внутренних перегородок, и композиционным центром интерьера стала гостиная.

Дизайнер стремился уйти от деталей, чтобы пространство было единым. Также были заменены обычные двери на двери-невидимки. В случаях, когда полотно и отделка стены в одном тоне, как в нашем дизайн проекте, можно использовать алюминиевый профиль на торец полотна и полотно на тон светлее стены, нежели основная стена.
Мебельная композиция (встроенный шкаф по эскизам дизайнера) перетекает из одного пространства в другое, рисунок фасадов привносят свой ритм в композицию.

Изюминкой интерьера стала мебель фабрики Cattelan Italia (стол, стулья, диван) и подвесной светильник Moooi.

В отделке спальни нет ничего лишнего, в оформлении преобладает оттенок серого, но она не кажется скучной и безликой. Облицовка одной из стен в спальне выполнена деревянными панелями с чёткими горизонтальными линиями. В ванной комнате присутствует та же «прямолинейность» – вся сантехника имеет правильные геометрические формы.

Дизайн-проект интерьера был разработан в стиле минимализм, так как данный стиль можно охарактеризовать как моделирование пространства и света с использованием только необходимых предметов. В стиле минимализм все поверхности просты и лаконичны, без какого-либо декора, украшений и отделки. <br>
В проекте использовали нейтральную цветовую палитру – теплые серые стены, деревянный пол из дуба, графитовый серый и белый лак. <br><br>

Чтобы создавалось ощущение простора, помещение по возможности освободили от внутренних перегородок, и композиционным центром интерьера стала гостиная. <br><br>

Дизайнер стремился уйти от деталей, чтобы пространство было единым. Также были заменены обычные двери на двери-невидимки. В случаях, когда полотно и отделка стены в одном тоне, как в нашем дизайн проекте, можно использовать алюминиевый профиль на торец полотна и полотно на тон светлее стены, нежели основная стена. <br>
Мебельная композиция (встроенный шкаф по эскизам дизайнера) перетекает из одного пространства в другое, рисунок фасадов привносят свой ритм в композицию. <br><br>

Изюминкой интерьера стала мебель фабрики Cattelan Italia (стол, стулья, диван) и подвесной светильник Moooi. <br><br>

В отделке спальни нет ничего лишнего, в оформлении преобладает оттенок серого, но она не кажется скучной и безликой. Облицовка одной из стен в спальне выполнена деревянными панелями с чёткими горизонтальными линиями. В ванной комнате присутствует та же «прямолинейность» – вся сантехника имеет правильные геометрические формы.

Больше фото проекта

Дизайн-проект светлой двухкомнатной квартира для молодой пары
Дизайн-проект светлой двухкомнатной квартира для молодой пары
Дизайн-проект светлой двухкомнатной квартира для молодой пары
Дизайн-проект светлой двухкомнатной квартира для молодой пары
Дизайн-проект светлой двухкомнатной квартира для молодой пары
Дизайн-проект светлой двухкомнатной квартира для молодой пары
Дизайн-проект светлой двухкомнатной квартира для молодой пары
Дизайн-проект светлой двухкомнатной квартира для молодой пары
Дизайн-проект светлой двухкомнатной квартира для молодой пары
Дизайн-проект светлой двухкомнатной квартира для молодой пары
Дизайн-проект светлой двухкомнатной квартира для молодой пары
Дизайн-проект светлой двухкомнатной квартира для молодой пары
Дизайн-проект светлой двухкомнатной квартира для молодой пары
Дизайн-проект светлой двухкомнатной квартира для молодой пары
Дизайн-проект светлой двухкомнатной квартира для молодой пары
Дизайн-проект светлой двухкомнатной квартира для молодой пары
Дизайн-проект светлой двухкомнатной квартира для молодой пары

Не откладывайте свою мечту на завтра!
Получите детальный проект квартиры или дома мечты!

Оставьте свои контактные данные, чтобы мы могли с вами связаться и обсудить ваш проект.

Часто задаваемые вопросы

Конечно! На стадии разработки проекта можно вносить изменения. Если возникло желание внести изменения в готовый проект после согласования и сдачи, тогда составляется доп.соглашение о дополнительной оплате и о характере корректировок.

Дизайн проект включает в себя:
План обмера помещения (существующая планировка помещения с указанием площади).
Утвержденный концепт-план (планировочное решение с разделением на функциональные зоны с расстановкой мебели и сантехнического оборудования).
Подбор материалов (отделочные материалы, мебель, сантехника, светильники, текстиль и многое другое).
Ведомость отделочных материалов (площади материалов, типы материалов).
План демонтажа конструкций.
План монтажа конструкций из ГКЛ (с дополнительными схемами конструкций на новых листах).
План-схема дверных проемов (со спецификацией дверей и витражей).
План отопительных приборов.
План сантехнического оборудования (подбор сантехники и развертка по стенам с привязками).
План покрытий пола с указанием площади.
План уровней потолка.
План освещения (спецификация светильников).
План розеток с привязками.
Узлы сложных и дизайнерских конструктивных решений.
Развертки по стенам. Раскладка плитки.
Подробные чертежи сложных узлов и деталей.
Чертежи по кухне и оборудованию.
Чертежи индивидуальных изделий под заказ.
Визуализации интерьера.

Цена на дизайн-проект всегда зависит от его наполнения, т.е. от поставленных задач, их сложности, сроков, этапов реализации и площади помещения.
Работа может включать создание только эскизного проекта, рабочего проекта или полного проекта. Наличие услуги авторского сопровождения дизайнера также влияет на итоговую стоимость проекта.

Чертежи нужны, прежде всего, строителям. Чертежная документация пошагово отражает, как нужно проводить ремонтные работы на конкретном объекте. Чтобы не было дорогостоящих и долгих переделок, исполнителям надо дать четкую «инструкцию ремонта».
Чертежи – это помощники в коммуникации между дизайнером и строительной бригадой. С помощью комплекта чертежей строители и отделочники выполнят все работы именно так, как было спроектировано.

Стоимость дизайн-проект всегда зависит от его наполнения (площади помещения, поставленных задач, их сложности, этапов и сроков реализации).
Дизайн-проект может быть только эскизный или дополнен 3D-моделированием. Комплект чертежей может быть базовым или полным. На итоговую стоимость влияет наличие дополнительных услуг: авторского сопровождения, комплекция, декорирования объектаи др.

Удобство и функционал – одно из основных требований, которое я ставлю перед собой как дизайнером. Поэтому я всегда определяю все действия, которые будут происходить в помещении, не забывая про ежедневные рутины. Это та самая база, без которой дизайн может оказаться неудачным. Только так можно сделать помещение многофункциональным и удобным.
Четкий алгоритм работы всегда позволяет мне найти именно то планировочное решение, которое будет функциональным и эргономичным, удобным и лаконичным.

Да. Если у вас возникло желание внести изменения в готовый проект после его согласования и сдачи, тогда составляется доп.соглашение о дополнительной оплате.
Вы также можете решить расширить пакет чертежной документации, выбрать услугу авторского надзора или заказать разработку ландшафтного оформления. Это также повлияет на итоговую оплату работы дизайнера.

При проведении ремонтных работ нужно заключать договор, чтобы в случае ненадлежащего исполнения и порчи материалов нарушитель нес ответственность, а у пострадавшей стороны была возможность предъявить требования. Я считаю, что строители должны с вами согласовать, как будет возмещен ущерб. Иногда они сами покупают тот материал, который испортили.
Чтобы такого не произошло, выбирайте проверенных строителей или по рекомендации.

Остались вопросы?

Оставьте заявку и наш менеджер ответит вам в ближайшее время

Вверх