Компактный одноэтажный загородный дом

Две прекрасные женщины – мама и дочь – мечтали о загородном доме и доверили именно мне работать над воплощением их мечты. У этого дизайн-проекта несколько особенностей: комфортная планировка внутри дома, большая открытая терраса снаружи, окна из спальни в пол, ведущие на террасу, и наличие такого редкого помещения для загородного жилья как кабинет. Конечно же, дом подходит для круглогодичного проживания.

Заказчики проекта

Мама и дочь

Стиль

современный

Площадь объекта

140 кв.м.

У одноэтажного дома современная архитектура, обусловленная его функцией и удобством. Мы стремились сместить фокус внимания на баланс современной архитектуры и природного окружения. Для этого сделали плоскую кровлю, просторную открытую террасу и панорамные окна.
Плоская кровля смотрится современно и стильно. Вопреки распространенному мнению, на их эксплуатацию не влияет сила ветра или количество осадков в зимний период.
Панорамные окна – ещё одна характерная особенность проекта: благодаря им внутри всегда много света, а любоваться окружающим ландшафтом можно из любого помещения. Планировка сделана таким образом, что в спальне есть отдельный выход. Летом отсюда приятно выйти прямо на террасу.
Большая открытая терраса выходит в сад. Легкая, воздушная, наполненная светом она как нельзя лучше соответствует летнему настроению. Хозяйки отметили, что им приятно ощущать близость с природой, не покидая своего уютного дворика.

В отделке фасада использовали самые стандартные приемы: декоративная камешковая штукатурка, дерево и керамогранит под камень. Эти ненавязчивые материалы и решения подчёркивают главенство природной составляющей, лаконичная архитектура не конфликтует с естественным окружением.

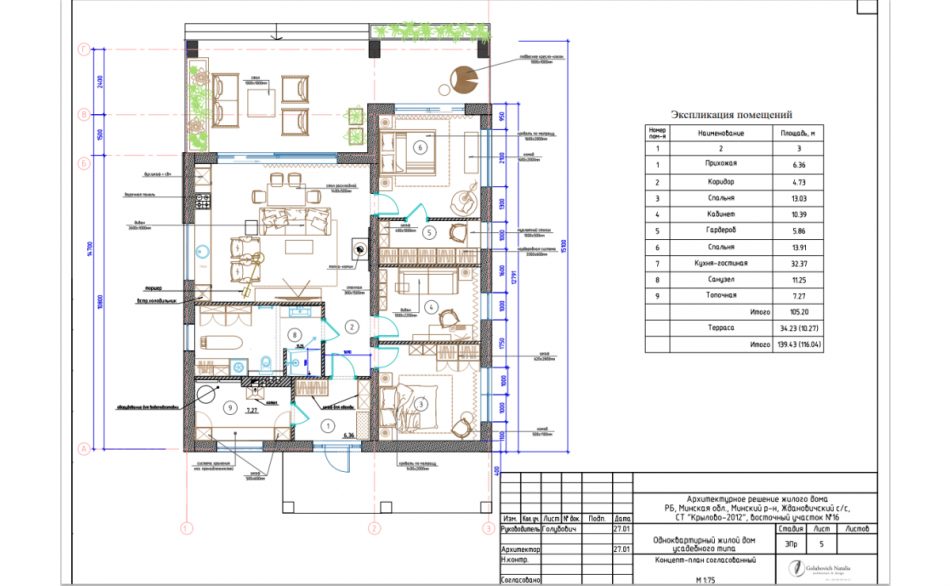
В этом проекте очень удобная планировка: две спальни разделены между собой гардеробной и кабинетом, а для общего времяпрепровождения двух хозяек спроектирована кухня-гостиная. Из гостиной можно выйти на террасу – в теплое время года эти зоны легко объединить.
Взаимное доверие помогало находить решения: задумки архитектора и пожелания заказчиков полностью совпали.

У одноэтажного дома современная архитектура, обусловленная его функцией и удобством. Мы стремились сместить фокус внимания на баланс современной архитектуры и природного окружения. Для этого сделали плоскую кровлю, просторную открытую террасу и панорамные окна.<br>
Плоская кровля смотрится современно и стильно. Вопреки распространенному мнению, на их эксплуатацию не влияет сила ветра или количество осадков в зимний период. <br>
Панорамные окна – ещё одна характерная особенность проекта: благодаря им внутри всегда много света, а любоваться окружающим ландшафтом можно из любого помещения. Планировка сделана таким образом, что в спальне есть отдельный выход. Летом отсюда приятно выйти прямо на террасу. <br>
Большая открытая терраса выходит в сад. Легкая, воздушная, наполненная светом она как нельзя лучше соответствует летнему настроению. Хозяйки отметили, что им приятно ощущать близость с природой, не покидая своего уютного дворика. <br><br>

В отделке фасада использовали самые стандартные приемы: декоративная камешковая штукатурка, дерево и керамогранит под камень. Эти ненавязчивые материалы и решения подчёркивают главенство природной составляющей, лаконичная архитектура не конфликтует с естественным окружением. <br><br>

В этом проекте очень удобная планировка: две спальни разделены между собой гардеробной и кабинетом, а для общего времяпрепровождения двух хозяек спроектирована кухня-гостиная. Из гостиной можно выйти на террасу – в теплое время года эти зоны легко объединить. <br>
Взаимное доверие помогало находить решения: задумки архитектора и пожелания заказчиков полностью совпали.

Больше фото проекта

Компактный одноэтажный загородный дом
Компактный одноэтажный загородный дом
Компактный одноэтажный загородный дом
Компактный одноэтажный загородный дом
Компактный одноэтажный загородный дом
Компактный одноэтажный загородный дом

Не откладывайте свою мечту на завтра!
Получите детальный проект квартиры или дома мечты!

Оставьте свои контактные данные, чтобы мы могли с вами связаться и обсудить ваш проект.

Часто задаваемые вопросы

Конечно! На стадии разработки проекта можно вносить изменения. Если возникло желание внести изменения в готовый проект после согласования и сдачи, тогда составляется доп.соглашение о дополнительной оплате и о характере корректировок.

Дизайн проект включает в себя:
План обмера помещения (существующая планировка помещения с указанием площади).
Утвержденный концепт-план (планировочное решение с разделением на функциональные зоны с расстановкой мебели и сантехнического оборудования).
Подбор материалов (отделочные материалы, мебель, сантехника, светильники, текстиль и многое другое).
Ведомость отделочных материалов (площади материалов, типы материалов).
План демонтажа конструкций.
План монтажа конструкций из ГКЛ (с дополнительными схемами конструкций на новых листах).
План-схема дверных проемов (со спецификацией дверей и витражей).
План отопительных приборов.
План сантехнического оборудования (подбор сантехники и развертка по стенам с привязками).
План покрытий пола с указанием площади.
План уровней потолка.
План освещения (спецификация светильников).
План розеток с привязками.
Узлы сложных и дизайнерских конструктивных решений.
Развертки по стенам. Раскладка плитки.
Подробные чертежи сложных узлов и деталей.
Чертежи по кухне и оборудованию.
Чертежи индивидуальных изделий под заказ.
Визуализации интерьера.

Цена на дизайн-проект всегда зависит от его наполнения, т.е. от поставленных задач, их сложности, сроков, этапов реализации и площади помещения.
Работа может включать создание только эскизного проекта, рабочего проекта или полного проекта. Наличие услуги авторского сопровождения дизайнера также влияет на итоговую стоимость проекта.

Чертежи нужны, прежде всего, строителям. Чертежная документация пошагово отражает, как нужно проводить ремонтные работы на конкретном объекте. Чтобы не было дорогостоящих и долгих переделок, исполнителям надо дать четкую «инструкцию ремонта».
Чертежи – это помощники в коммуникации между дизайнером и строительной бригадой. С помощью комплекта чертежей строители и отделочники выполнят все работы именно так, как было спроектировано.

Стоимость дизайн-проект всегда зависит от его наполнения (площади помещения, поставленных задач, их сложности, этапов и сроков реализации).
Дизайн-проект может быть только эскизный или дополнен 3D-моделированием. Комплект чертежей может быть базовым или полным. На итоговую стоимость влияет наличие дополнительных услуг: авторского сопровождения, комплекция, декорирования объектаи др.

Удобство и функционал – одно из основных требований, которое я ставлю перед собой как дизайнером. Поэтому я всегда определяю все действия, которые будут происходить в помещении, не забывая про ежедневные рутины. Это та самая база, без которой дизайн может оказаться неудачным. Только так можно сделать помещение многофункциональным и удобным.
Четкий алгоритм работы всегда позволяет мне найти именно то планировочное решение, которое будет функциональным и эргономичным, удобным и лаконичным.

Да. Если у вас возникло желание внести изменения в готовый проект после его согласования и сдачи, тогда составляется доп.соглашение о дополнительной оплате.
Вы также можете решить расширить пакет чертежной документации, выбрать услугу авторского надзора или заказать разработку ландшафтного оформления. Это также повлияет на итоговую оплату работы дизайнера.

При проведении ремонтных работ нужно заключать договор, чтобы в случае ненадлежащего исполнения и порчи материалов нарушитель нес ответственность, а у пострадавшей стороны была возможность предъявить требования. Я считаю, что строители должны с вами согласовать, как будет возмещен ущерб. Иногда они сами покупают тот материал, который испортили.
Чтобы такого не произошло, выбирайте проверенных строителей или по рекомендации.

Остались вопросы?

Оставьте заявку и наш менеджер ответит вам в ближайшее время

Вверх