Светлый дом La Natura
Дом, хоть и находится за городом, но предназначен для постоянного проживания. Поэтому мы стремились в расположении комнат учесть все пожелания заказчиков. Планировка первого этажа включает прихожую, гостиную, кухню-столовую, гостевую комнату и санузел, гардеробную, а также котельную и хозяйственные помещения. План первого этажа также предполагает гараж со спортивным снаряжением и террасу для релакса.
Заказчики проекта
Семья с двумя сыновьями
Стиль
Современный интерьер
Площадь объекта
340 кв.м.
Срок выполнения
6 месяцев
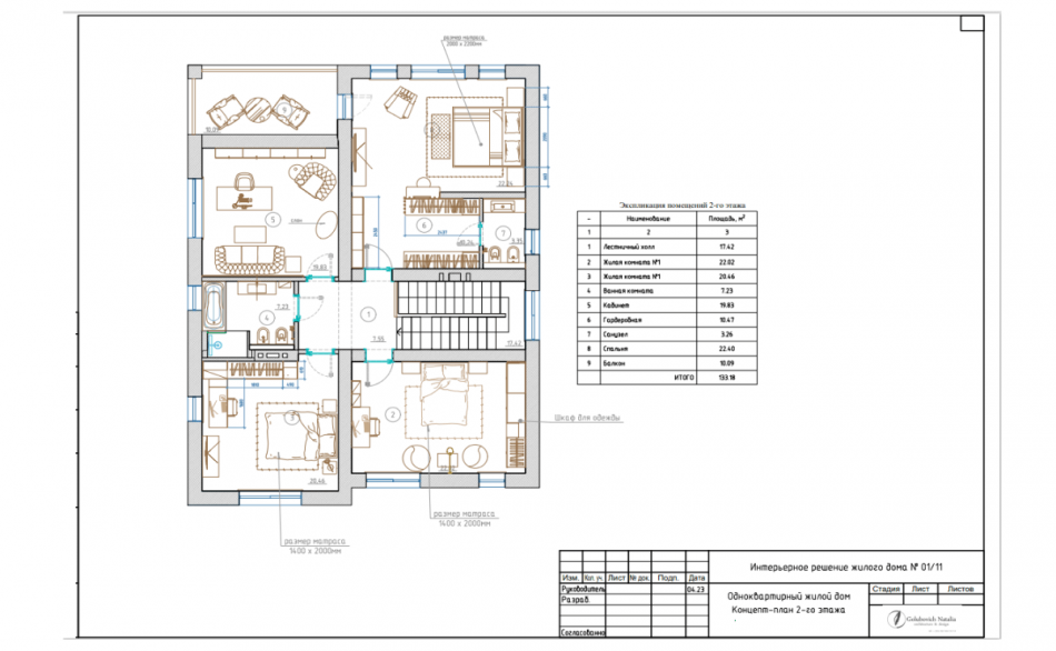
Второй этаж, мансардный, но полноценный за счет высоких потолков. В некоторых помещениях они достигают 3 метров, в иных – до 5,5 метров. Дело в том, что заказчик отказался отпускать потолок, поскольку хотел воздуха и пространства. И это было правильным решением!
На втором этаже расположили кабинет, спальни детей, а также мастер-спальню. К спальне родителей примыкает небольшой санузел, гардеробная, отдельный балкон. Получилась очень комфортная родительская мини-зона отдыха от детского шума. Из панорамных окон в спальне и гостиной открывается потрясающий вид на сосны – уголок леса за окном.
Заказчики просили разработать дизайн проект дома в современном стиле с элементами нео-классики. Была поставлена задача создать светлый и теплый интерьер. Подобного эффекта мы добились сочетанием текстуры натурального дерева с имитацией камня. На первом этаже уложили единое покрытие – керамогранит под камень. Сатиновая поверхность плитки эффектно преломляет свет из окон, словно немного играя.
Стены практически везде предназначены под покраску, но встречается и комбинирование с деревянными и декоративными элементами. Так, лестничный холл решен в постельных тонах, а акцентом стала фреска с дополнительной проработкой и росписью на стенах. Тема природы также повторяется и в мастер-спальне у изголовья кровати. Изображение деревьев объединяет пространство дома с окружающим природным ландшафтом. Эту задачу решают и входные двери со стеклом, что делает изящный интерьер продолжением нежной природы.
Интересным цветовым решением выделяются даже санузлы. Например, сочетание белого и молочного шоколада или песочного монохрома с насыщенно черным. Несмотря на то, что весь интерьер – светлый, он «разбавлен» яркими элементами. К примеру, такая деталь на люстре как малахитовые шары привносят изюминку в интерьер.
Из всей стилистики дома выделяется кабинет. Поскольку глава семьи немало времени проводит за работой, он пожелал, чтобы в интерьере читались ноты английского стиля. С этой задачей мы справились, использовав деревянные панели на стенах в сочетании с обоями в английскую клетку. Отличным решением стали и встроенные книжные стеллажи.
Этот загородный двухэтажный дом получился максимально комфортным и стильным, когда мечта клиентов была воплощена в лаконичном, но эффектном интерьере.
Не откладывайте свою мечту на завтра!
Получите детальный проект квартиры или дома мечты!
Оставьте свои контактные данные, чтобы мы могли с вами связаться и обсудить ваш проект.
Часто задаваемые вопросы
Конечно! На стадии разработки проекта можно вносить изменения. Если возникло желание внести изменения в готовый проект после согласования и сдачи, тогда составляется доп.соглашение о дополнительной оплате и о характере корректировок.
Дизайн проект включает в себя:
План обмера помещения (существующая планировка помещения с указанием площади).
Утвержденный концепт-план (планировочное решение с разделением на функциональные зоны с расстановкой мебели и сантехнического оборудования).
Подбор материалов (отделочные материалы, мебель, сантехника, светильники, текстиль и многое другое).
Ведомость отделочных материалов (площади материалов, типы материалов).
План демонтажа конструкций.
План монтажа конструкций из ГКЛ (с дополнительными схемами конструкций на новых листах).
План-схема дверных проемов (со спецификацией дверей и витражей).
План отопительных приборов.
План сантехнического оборудования (подбор сантехники и развертка по стенам с привязками).
План покрытий пола с указанием площади.
План уровней потолка.
План освещения (спецификация светильников).
План розеток с привязками.
Узлы сложных и дизайнерских конструктивных решений.
Развертки по стенам. Раскладка плитки.
Подробные чертежи сложных узлов и деталей.
Чертежи по кухне и оборудованию.
Чертежи индивидуальных изделий под заказ.
Визуализации интерьера.
Цена на дизайн-проект всегда зависит от его наполнения, т.е. от поставленных задач, их сложности, сроков, этапов реализации и площади помещения.
Работа может включать создание только эскизного проекта, рабочего проекта или полного проекта. Наличие услуги авторского сопровождения дизайнера также влияет на итоговую стоимость проекта.
Чертежи нужны, прежде всего, строителям. Чертежная документация пошагово отражает, как нужно проводить ремонтные работы на конкретном объекте. Чтобы не было дорогостоящих и долгих переделок, исполнителям надо дать четкую «инструкцию ремонта».
Чертежи – это помощники в коммуникации между дизайнером и строительной бригадой. С помощью комплекта чертежей строители и отделочники выполнят все работы именно так, как было спроектировано.
Стоимость дизайн-проект всегда зависит от его наполнения (площади помещения, поставленных задач, их сложности, этапов и сроков реализации).
Дизайн-проект может быть только эскизный или дополнен 3D-моделированием. Комплект чертежей может быть базовым или полным. На итоговую стоимость влияет наличие дополнительных услуг: авторского сопровождения, комплекция, декорирования объектаи др.
Удобство и функционал – одно из основных требований, которое я ставлю перед собой как дизайнером. Поэтому я всегда определяю все действия, которые будут происходить в помещении, не забывая про ежедневные рутины. Это та самая база, без которой дизайн может оказаться неудачным. Только так можно сделать помещение многофункциональным и удобным.
Четкий алгоритм работы всегда позволяет мне найти именно то планировочное решение, которое будет функциональным и эргономичным, удобным и лаконичным.
Да. Если у вас возникло желание внести изменения в готовый проект после его согласования и сдачи, тогда составляется доп.соглашение о дополнительной оплате.
Вы также можете решить расширить пакет чертежной документации, выбрать услугу авторского надзора или заказать разработку ландшафтного оформления. Это также повлияет на итоговую оплату работы дизайнера.
При проведении ремонтных работ нужно заключать договор, чтобы в случае ненадлежащего исполнения и порчи материалов нарушитель нес ответственность, а у пострадавшей стороны была возможность предъявить требования. Я считаю, что строители должны с вами согласовать, как будет возмещен ущерб. Иногда они сами покупают тот материал, который испортили.
Чтобы такого не произошло, выбирайте проверенных строителей или по рекомендации.
Оставьте заявку и наш менеджер ответит вам в ближайшее время